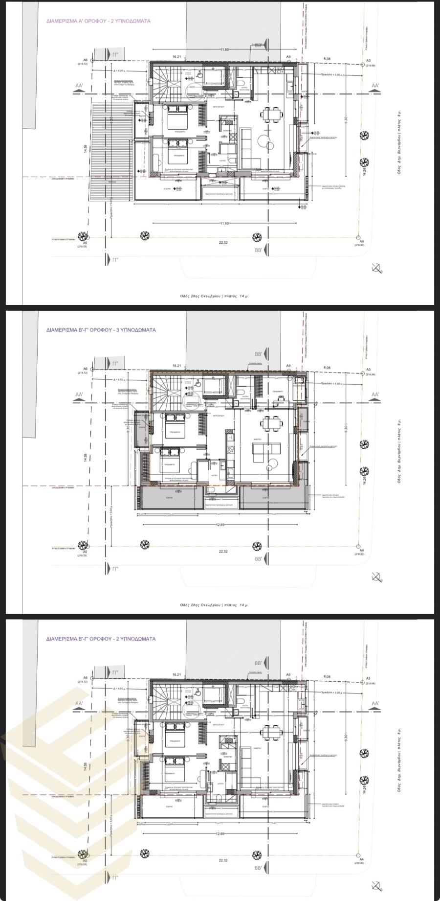
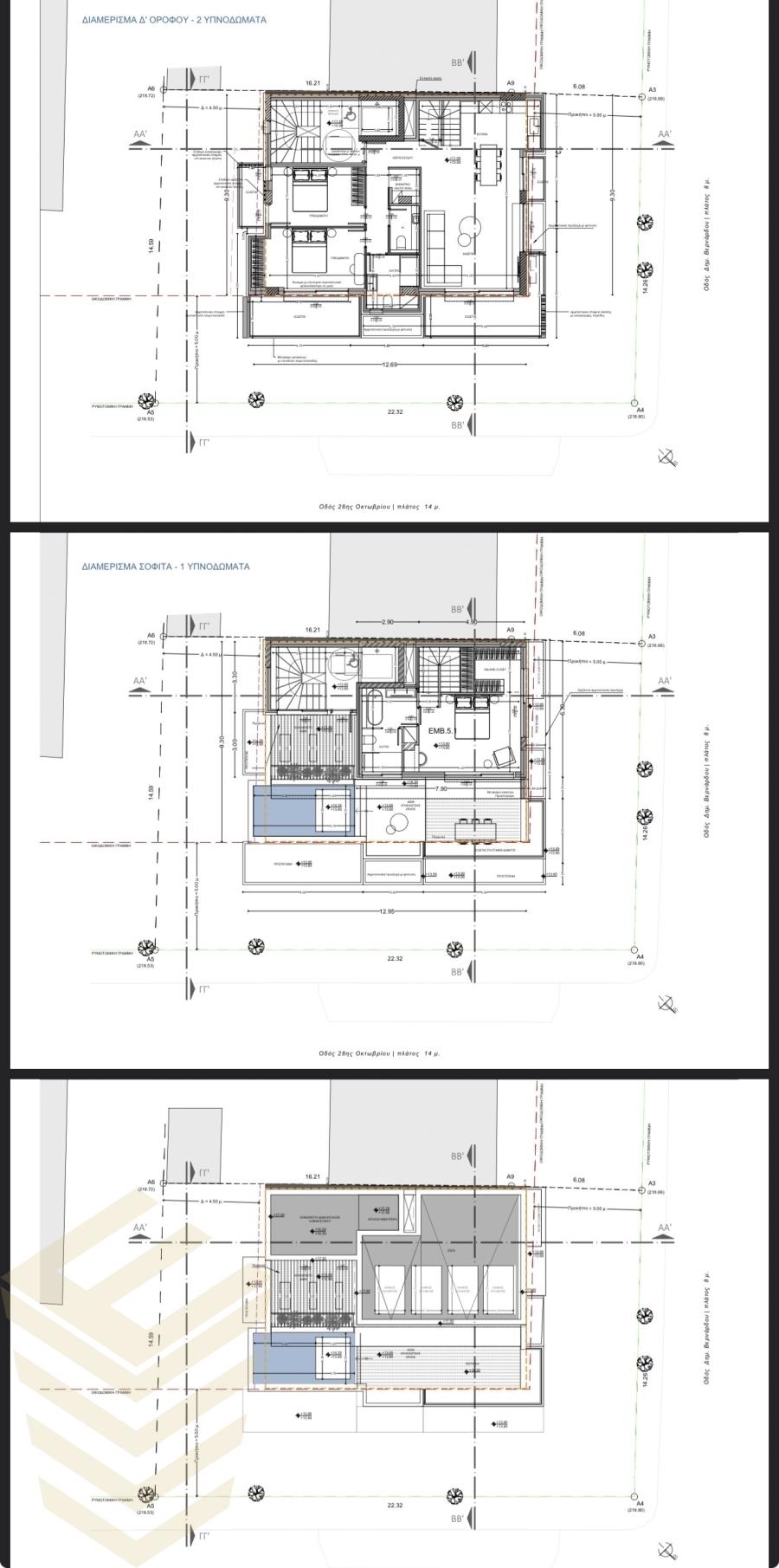
Σε μια καταπληκτική γειτονιά στα Μελίσσια βρίσκεται αυτή η υπό κατασκευή πολυκατοικία .Μέσα στην αγορά αλλά με την ησυχία της γειτονιάς , κοντά στα πάντα και στον Προαστιακό ! Σε αυτό το στάδιο μπορείτε να διαλέξετε υλικά και εάν επιθυμείτε να δημιουργηθεί και μια ακόμα κρεβατοκάμαρα .Η κατασκευή είναι για απαιτητικούς πελάτες .Η πληρωμές θα γίνονται σταδιακά με την πρόοδο των εργασιών .Μελίσσια, Αμαλία Φλέμινγκ, Όροφο διαμέρισμα Προς Πώληση, 102 τ.μ., Κατάσταση: υπό κατασκευή, Όροφος: 2ος, 1 Επίπεδο, 2 Υ/Δ, 1 Κουζίνα, 2 Μπάνια, Θέρμανση: Ατομική - Αντλία Θερμότητας, Θέα: Αστικό τοπίο, Έτος κατασκευής: 2026, Ενεργειακό Πιστοποιητικό: Α++, 2 θέσεις στάθμευσης, Δάπεδα: Πατώματα + Πλακάκια, Kουφώματα: Αλουμινίου, Χαρακτηριστικά: Ασανσέρ, Πόρτα Ασφαλείας, Θυροτηλεόραση, Αποθήκη, Νυχτερινό ρεύμα, Διπλά Τζάμια, Σίτες, Βεράντες, Επιτρέπονται Κατοικίδια, Πολυτελές, Αρχοντικό, Διαμπερές, Προσόψεως, Φωτεινό, Ηλιακός, Κήπος, Νεόδμητο, Κοντά σε: ΑΓΟΡΑ ΣΥΓΚΟΙΝΟΝΙΕΣ, ΘΕΑ ΒΟΥΝΟ , ΣΧΟΛΕΙΑ, ΠΛΑΤΕΙΑ, ΣΧΟΛΕΙΑ.