(Προς Πώληση) Κατοικία Μεζονέτα || Πειραιάς/Πειραιάς - 91 τ.μ, 2 Υ/Δ, 395.000€

Χαρακτηριστικά

  •  Υ/Δ: 2
  •  Μπάνια: 2
  •   Όροφος: 6ος
  •   WC:
  •   Έτος Κατασκευής: 2025
  •   Parkings: 1

Περιοχή: Πειραιάς (Δ. Πειραιά)
Υποπεριοχή: Αγία Σοφία
Τιμή: 395.000€
Εμβαδόν: 90,61
Κατηγορία: Κατοικίες
Τύπος: Μεζονέτα
Κατάσταση: υπό κατασκευή
Τιμή/τ.μ.: 4.359€
Τ.μ. Οικοπέδου: 172,41
Θέα: Αστικό τοπίο
Θέρμανση: Αυτόνομη
Επίπεδα: 2
ΠΕΑ: A+
Κωδικός: 1869439
Κωδικός: 13829
 

Επιπλέον Χαρακτηριστικά

Ασανσέρ Πόρτα Ασφαλείας Θυροτηλεόραση Αποθήκη Εσωτερική Σκάλα Διπλά Τζάμια Σίτες Βεράντες Πολυτελές Προσόψεως Φωτεινό Γωνιακό Ηλιακός Νεόδμητο
 

Περιγραφή

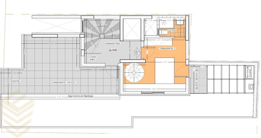
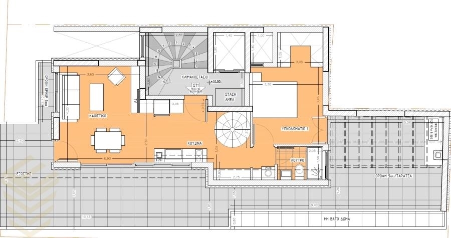
Εξαιρετικό Υπό Κατασκευή Ακίνητο ενεργειακής Κλάσης Α+.Το ακίνητο βρίσκεται σε μια από τις πιο όμορφες συνοικίες του Πειραιά , σε απόσταση μόλις 500 μέτρων η 8 λεπτά περπατώντας από τον σταθμό Μετρό Μανιάτικα , και σε απόσταση 800 μέτρων η 11 λεπτά περπατήματος από τον Κεντρικό Επιβατικό Λιμένα Πειραιώς .Η περιοχή γύρω γύρω από το ακίνητο, παρέχει τα πάντα σε καταστήματα εστίασης ,Εμπορικά , Καφέ , όπως επίσης και Κρεοπωλεία , Super Market .Η τιμή ανα τετραγωνικό μέτρο ,είναι πολύ ανταγωνιστική σε σχέση με άλλες κατασκευές στην περιοχή του Πειραιά και είναι και ελαφρώς συζητήσιμη . Είναι μια ευκαιρία για να αποκτήσετε το δικό σας Νεόδμητο σπίτι με Δάνειο η χωρίς και με 4 συνολικά καταβολές (Κατά την πρόοδο εργασιών ).Πειραιάς, Αγία Σοφία, Μεζονέτα Προς Πώληση, 91 τ.μ., Σε οικόπεδο 172,41 τ.μ., Κατάσταση: υπό κατασκευή, Όροφος: 6ος, 2 Επίπεδα, 2 Υ/Δ , 1 Κουζίνα, 1 Σαλόνι, 2 Μπάνια , Θέρμανση: Αυτόνομη - Αντλία Θερμότητας, Θέα: Αστικό τοπίο, Έτος κατασκευής: 2025, Ενεργειακό Πιστοποιητικό: Α+, 1 θέση στάθμευσης, Δάπεδα: Πλακάκια, Kουφώματα: Αλουμινίου, Χαρακτηριστικά: Ασανσέρ, Πόρτα Ασφαλείας, Θυροτηλεόραση, Αποθήκη, Εσωτερική Σκάλα, Διπλά Τζάμια, Σίτες, Βεράντες, Πολυτελές, Προσόψεως, Φωτεινό, Γωνιακό, Ηλιακός, Νεόδμητο.
 

Αναλυτική Περιγραφή

Εξαιρετικό Υπό Κατασκευή Ακίνητο ενεργειακής Κλάσης Α+.
Το ακίνητο βρίσκεται σε μια από τις πιο όμορφες συνοικίες του Πειραιά , σε απόσταση μόλις 500 μέτρων η 8 λεπτά περπατώντας από τον σταθμό Μετρό Μανιάτικα , και σε απόσταση 800 μέτρων η 11 λεπτά περπατήματος από τον Κεντρικό Επιβατικό Λιμένα Πειραιώς .
Η περιοχή γύρω γύρω από το ακίνητο, παρέχει τα πάντα σε καταστήματα εστίασης ,Εμπορικά , Καφέ , όπως επίσης και Κρεοπωλεία , Super Market .
Η τιμή ανα τετραγωνικό μέτρο ,είναι πολύ ανταγωνιστική σε σχέση με άλλες κατασκευές στην περιοχή του Πειραιά και είναι και ελαφρώς συζητήσιμη . 
Είναι μια ευκαιρία για να αποκτήσετε  το δικό σας Νεόδμητο σπίτι με Δάνειο η χωρίς και με 4 συνολικά καταβολές (Κατά την πρόοδο εργασιών ).
 

Χάρτης

Στατιστικά Ακινήτου

Δημοσίευση Ακινήτου: 12 Ιαν, 2026
Τελευταία ενημέρωση: 19 Μαρ, 2026
 

Με Ενδιαφέρει το ακίνητο

*
*
Τα πεδία με * είναι υποχρεωτικά
Εισάγετε τον κωδικό

Ενεργειακό Πιστοποιητικό

A+

Εργαλεία

Υπολογισμός Δανείου
Συμπληρώστε το Επιτόκιο (χωρίς το σύμβολο %} και τη Διάρκεια αποπληρωμής σε έτη. Αν επιθυμείτε μπορείτε να αλλάξετε και το ποσό
(%)
Νόμισμα

Διαδώστε το

logo (Προς Πώληση) Κατοικία Μεζονέτα || Πειραιάς/Πειραιάς - 91 τ.μ, 2 Υ/Δ, 395.000€



Χαρακτηριστικά

Περιοχή: Πειραιάς (Δ. Πειραιά)
Υποπεριοχή: Αγία Σοφία
Τιμή: 395.000€
Εμβαδόν: 90,61
Κατηγορία: Κατοικίες
Τύπος: Μεζονέτα
Κατάσταση: υπό κατασκευή
Τιμή/τ.μ.: 4.359€
Υ/Δ: 2
WC:
Μπάνια: 2
Όροφος: 6ος
Έτος Κατασκευής: 2025
Τ.μ. Οικοπέδου: 172,41
Θέα: Αστικό τοπίο
Parkings 1
Θέρμανση: Αυτόνομη
Επίπεδα: 2
ΠΕΑ: A+
ID code: 1869439
Κωδικός: 13829
 

Περιγραφή

Εξαιρετικό Υπό Κατασκευή Ακίνητο ενεργειακής Κλάσης Α+.Το ακίνητο βρίσκεται σε μια από τις πιο όμορφες συνοικίες του Πειραιά , σε απόσταση μόλις 500 μέτρων η 8 λεπτά περπατώντας από τον σταθμό Μετρό Μανιάτικα , και σε απόσταση 800 μέτρων η 11 λεπτά περπατήματος από τον Κεντρικό Επιβατικό Λιμένα Πειραιώς .Η περιοχή γύρω γύρω από το ακίνητο, παρέχει τα πάντα σε καταστήματα εστίασης ,Εμπορικά , Καφέ , όπως επίσης και Κρεοπωλεία , Super Market .Η τιμή ανα τετραγωνικό μέτρο ,είναι πολύ ανταγωνιστική σε σχέση με άλλες κατασκευές στην περιοχή του Πειραιά και είναι και ελαφρώς συζητήσιμη . Είναι μια ευκαιρία για να αποκτήσετε το δικό σας Νεόδμητο σπίτι με Δάνειο η χωρίς και με 4 συνολικά καταβολές (Κατά την πρόοδο εργασιών ).Πειραιάς, Αγία Σοφία, Μεζονέτα Προς Πώληση, 91 τ.μ., Σε οικόπεδο 172,41 τ.μ., Κατάσταση: υπό κατασκευή, Όροφος: 6ος, 2 Επίπεδα, 2 Υ/Δ , 1 Κουζίνα, 1 Σαλόνι, 2 Μπάνια , Θέρμανση: Αυτόνομη - Αντλία Θερμότητας, Θέα: Αστικό τοπίο, Έτος κατασκευής: 2025, Ενεργειακό Πιστοποιητικό: Α+, 1 θέση στάθμευσης, Δάπεδα: Πλακάκια, Kουφώματα: Αλουμινίου, Χαρακτηριστικά: Ασανσέρ, Πόρτα Ασφαλείας, Θυροτηλεόραση, Αποθήκη, Εσωτερική Σκάλα, Διπλά Τζάμια, Σίτες, Βεράντες, Πολυτελές, Προσόψεως, Φωτεινό, Γωνιακό, Ηλιακός, Νεόδμητο.
 
Loading...