(Προς Πώληση) Επαγγελματικός Χώρος Γραφείο || Αθήνα Βόρεια/Νέα Ιωνία - 149 τ.μ, 195.000€

Χαρακτηριστικά

  •  Γραφεία:
  •  WC:
  •   Όροφος: 3ος
  •   WC:
  •   Έτος Κατασκευής: 1993
  •   Parkings:

Περιοχή: Νέα Ιωνία (Δ. Νέας Ιωνίας)
Υποπεριοχή: Κάτω Καλογρέζα
Τιμή: 195.000€
Εμβαδόν: 148,81
Κατηγορία: Επαγγελματικά
Τύπος: Γραφείο
Κατάσταση: Καλή
Τιμή/τ.μ.: 1.310€
Τ.μ. Οικοπέδου: 307,78
Θέα: Αστικό τοπίο
Θέρμανση: Ανεξάρτητη Θέρμανση
Επίπεδα: 1
ΠΕΑ: E
Κωδικός: 1856512
Κωδικός: 13785
 

Επιπλέον Χαρακτηριστικά

Ασανσέρ Βεράντες Διαμπερές Προσόψεως Φωτεινό
 

Περιγραφή

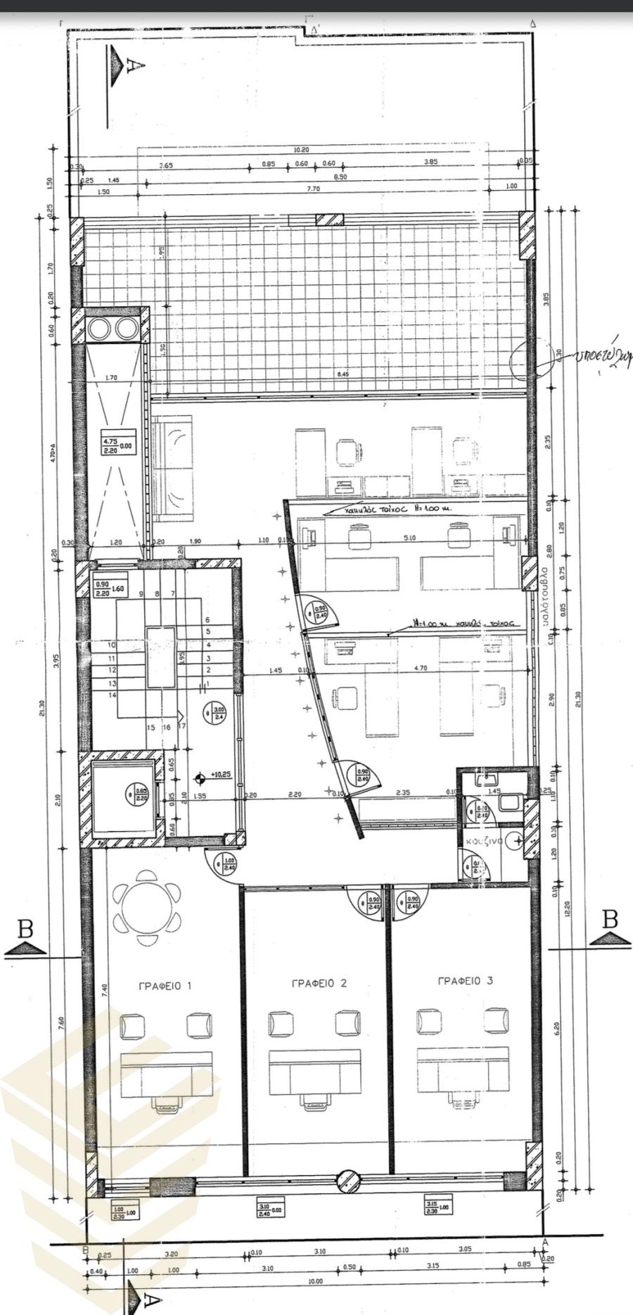
Νέα Ιωνία, Κάτω Καλογρέζα, Γραφείο Προς Πώληση, Ιδανικό για: ΓΡΑΦΕΙΟ,ΔΙΑΜΕΡΙΣΜΑ,ΔΙΚΗΓΟΡΙΚΟ ΓΡΑΦΕΙΟ,ΕΜΠΟΡΙΚΟ,ΙΑΤΡΕΙΟ,ΣΥΜΒΟΛΑΙΟΓΡΑΦΕΙΟ,ΥΓΕΙΟΝΟΜΙΚΟΥ, 149 τ.μ., Κατάσταση: Καλή, Όροφος: 3ος, 1 Επίπεδο/α, Θέρμανση: Ατομική - Ρεύμα, Έτος κατασκευής: 1993, Ενεργειακό Πιστοποιητικό: Ε, Δάπεδα: Πλακάκια, Kουφώματα: Αλουμινίου, Χαρακτηριστικά: Ασανσέρ, Βεράντες, Διαμπερές, Προσόψεως, Φωτεινό.Ενιαίος Επαγγελματικός Χώρος ,με κλιμακοστάσιο και Ανελκυστήρα .Ο χώρος είναι ιδανικός για οποιαδήποτε επαγγελματική απασχόληση ,(Ιατρεία ,Μικροβιολογικό κέντρο ,Δικηγορικό Γραφείο ,Συμβολαιογραφείο ).Επίσης και πολύ σημαντική πληροφορία είναι ότι μπορεί να ανακαινισθεί να γίνει αλλαγή χρήσης από επαγγελματικό σε οικιστικό και να δημιουργηθούν 3 διαμερίσματα των 43 τετραγωνικών έκαστο και να πωληθούν μέσω του προγράμματος για την απόκτηση Golden Visa από πολίτες Τρίτων Χωρών με κόστος 250.000 € !Η τιμή πώλησης ανα τετραγωνικό μέτρο, επιτρέπει μια πολύ καλή ανακατασκευή (Αλλαγή από γραφεία σε διαμερίσματα )και ένα αρκετά μεγάλο κέρδος για τον Επενδυτή .Είναι μια ευκαιρία αγοράς είτε σαν επαγγελματικό χώρο είτε για την μετατροπή του σε Οικιστικό.
 

Αναλυτική Περιγραφή

Ενιαίος Επαγγελματικός Χώρος ,με κλιμακοστάσιο και Ανελκυστήρα .
Ο χώρος είναι ιδανικός για οποιαδήποτε επαγγελματική απασχόληση ,(Ιατρεία ,Μικροβιολογικό κέντρο ,Δικηγορικό Γραφείο ,Συμβολαιογραφείο ).
Επίσης και πολύ σημαντική πληροφορία είναι ότι μπορεί να ανακαινισθεί να γίνει αλλαγή χρήσης από επαγγελματικό σε οικιστικό και να δημιουργηθούν 3 διαμερίσματα των 43 τετραγωνικών έκαστο και να πωληθούν μέσω του προγράμματος  για την απόκτηση Golden Visa  από πολίτες Τρίτων Χωρών με κόστος 250.000 € !
Η τιμή πώλησης ανα τετραγωνικό μέτρο, επιτρέπει μια πολύ καλή ανακατασκευή (Αλλαγή από γραφεία σε διαμερίσματα )και ένα αρκετά μεγάλο κέρδος για τον Επενδυτή .
Είναι μια ευκαιρία αγοράς είτε σαν επαγγελματικό χώρο είτε για την μετατροπή του σε Οικιστικό. 
 

Στατιστικά Ακινήτου

Δημοσίευση Ακινήτου: 29 Οκτ, 2025
Τελευταία ενημέρωση: 29 Οκτ, 2025
 

Με Ενδιαφέρει το ακίνητο

*
*
Τα πεδία με * είναι υποχρεωτικά
Εισάγετε τον κωδικό

Ενεργειακό Πιστοποιητικό

E

Εργαλεία

Υπολογισμός Δανείου
Συμπληρώστε το Επιτόκιο (χωρίς το σύμβολο %} και τη Διάρκεια αποπληρωμής σε έτη. Αν επιθυμείτε μπορείτε να αλλάξετε και το ποσό
(%)
Νόμισμα

Διαδώστε το

logo (Προς Πώληση) Επαγγελματικός Χώρος Γραφείο || Αθήνα Βόρεια/Νέα Ιωνία - 149 τ.μ, 195.000€



Χαρακτηριστικά

Περιοχή: Νέα Ιωνία (Δ. Νέας Ιωνίας)
Υποπεριοχή: Κάτω Καλογρέζα
Τιμή: 195.000€
Εμβαδόν: 148,81
Κατηγορία: Επαγγελματικά
Τύπος: Γραφείο
Κατάσταση: Καλή
Τιμή/τ.μ.: 1.310€
Γραφεία:
WC:
Μπάνια:
Όροφος: 3ος
Έτος Κατασκευής: 1993
Τ.μ. Οικοπέδου: 307,78
Θέα: Αστικό τοπίο
Parkings
Θέρμανση: Ανεξάρτητη Θέρμανση
Επίπεδα: 1
ΠΕΑ: E
ID code: 1856512
Κωδικός: 13785
 

Περιγραφή

Νέα Ιωνία, Κάτω Καλογρέζα, Γραφείο Προς Πώληση, Ιδανικό για: ΓΡΑΦΕΙΟ,ΔΙΑΜΕΡΙΣΜΑ,ΔΙΚΗΓΟΡΙΚΟ ΓΡΑΦΕΙΟ,ΕΜΠΟΡΙΚΟ,ΙΑΤΡΕΙΟ,ΣΥΜΒΟΛΑΙΟΓΡΑΦΕΙΟ,ΥΓΕΙΟΝΟΜΙΚΟΥ, 149 τ.μ., Κατάσταση: Καλή, Όροφος: 3ος, 1 Επίπεδο/α, Θέρμανση: Ατομική - Ρεύμα, Έτος κατασκευής: 1993, Ενεργειακό Πιστοποιητικό: Ε, Δάπεδα: Πλακάκια, Kουφώματα: Αλουμινίου, Χαρακτηριστικά: Ασανσέρ, Βεράντες, Διαμπερές, Προσόψεως, Φωτεινό.Ενιαίος Επαγγελματικός Χώρος ,με κλιμακοστάσιο και Ανελκυστήρα .Ο χώρος είναι ιδανικός για οποιαδήποτε επαγγελματική απασχόληση ,(Ιατρεία ,Μικροβιολογικό κέντρο ,Δικηγορικό Γραφείο ,Συμβολαιογραφείο ).Επίσης και πολύ σημαντική πληροφορία είναι ότι μπορεί να ανακαινισθεί να γίνει αλλαγή χρήσης από επαγγελματικό σε οικιστικό και να δημιουργηθούν 3 διαμερίσματα των 43 τετραγωνικών έκαστο και να πωληθούν μέσω του προγράμματος για την απόκτηση Golden Visa από πολίτες Τρίτων Χωρών με κόστος 250.000 € !Η τιμή πώλησης ανα τετραγωνικό μέτρο, επιτρέπει μια πολύ καλή ανακατασκευή (Αλλαγή από γραφεία σε διαμερίσματα )και ένα αρκετά μεγάλο κέρδος για τον Επενδυτή .Είναι μια ευκαιρία αγοράς είτε σαν επαγγελματικό χώρο είτε για την μετατροπή του σε Οικιστικό.
 
Loading...